Kwestie van vergunnen
Zoals gezegd hierbij blog 2 van vandaag. Dit keer uitsluitend over het theater op 77 zwart. Het laatste nieuws daarover was dat ik boven in de ‘herenkamer’ een werkkamer had gemaakt.

Het bleek daar nogal bedompt en of heel koud of heel warm te zijn. Niet getreurd, er waren nog andere ruimtes in het pand om een werkkamer te maken. Bijvoorbeeld in de voormalige winkel!

Bijna dagelijks vallen er nog oud-klanten naar binnen, vandaar dat ik de deur te allen tijden op slot moet houden. Het zou anders tijdens de video call te veel afleiden..
Hessel was ondertussen bezig met het aanvragen van de vergunning voor de sloop en de verbouwing. Iedereen die dat wel eens heeft gedaan weet hoeveel werk dat is. Normale mensen huren voor de tekeningen een architecten bureau in, maar Hessel heeft zichzelf geleerd alle tekeningen te maken.
Een simpele versie van de tekening is dit: Zo is het nu:

En zo wordt het straks:

In het geval van het SeksTheater is de voorkant van het pand een monument, maar de achterkant natuurlijk niet (vinden wij). Hessel had daartoe al de dienst Erfgoed thuis uitgenodigd en die hadden al een mail gestuurd dat wij daarin gelijk hadden. (Dit is de extreem korte versie van een vrij lang verhaal). Wij blij.
Mocht u de hele vergunningsaanvraag willen lezen, dan kan dat hier. En daar hoort deze rapportage bij over de asbest. Dat is er trouwens niet. Op 1 augustus diende Hessel alles in. Vanaf indienen heeft de gemeente 8 weken de tijd om een beoordeling te geven. Alles leek op rolletjes te verlopen. Totdat er al na een paar weken een brief van de gemeente kwam. Er moest nog aanvullende info worden opgeleverd en wel het volgende:

Voor dit soort vragen was de hulp van een bouwkundig tekenaar en een constructeur nodig. En snel een beetje ook, want eea moest binnen 6 weken ingeleverd zijn. Hessel had een bij-zon-der slechte dag die dag. Maar de volgende dag ging hij snel aan de slag. Eerst belde hij de schrijver van de brief bij de gemeente. Volgens de gemeente zouden er ook veranderingen aan ons eigen huis, nr 79 aangevraagd zijn. En had de ambtenaar gezien dat Dienst Erfgoed al had laten weten dat er geen bezwaar was? Nee, niet goed gelezen. OK, check, die vereisten vielen alvast af. Dan de beantwoording van de andere onderdelen…
Hessel werkte voorheen altijd met een bepaalde constructeursburo genaamd Duyts en daar bleek de baas bereid dit ‘even tussendoor te doen’. Ook nam hij contact op met onze buurvrouw Jildou (waarover later meer) die een bouwkundig tekenaar kende. Hessel belde de tekenaar en die was meteen enthousiast en kon voor de deadline leveren.
Dan was er nog de kwestie van het parkeren. Er bestaat zoiets als het “Parapluplan Parkeernormen Haarlem”. Daar hadden we nog nooit van gehoord, en dat hadden we dus ook helemaal niet bij onze aanvraag betrokken.
Kort gezegd: Je krijgt pas een bouwvergunning als je aan die norm voldoet. Volgens de norm mag je geen enkele extra auto aan de bestaande parkeerdruk toevoegen. Parkeren alleen op eigen terrein. Dat gaat bij ons natuurlijk lastig. Als dat niet kan, dan moet je aantonen dat je voor minstens 10 jaar ergens anders een priveplek hebt.
Zo stonden we op een avond aan te bellen bij een wildvreemde meneer. Naast zijn huis waren priveplekken, de enige in de wijde omgeving. De meneer dacht eerst dat we Jehovas waren, maar wilde uiteindelijk toch wel even naar ons luisteren. Hij vond het allemaal reuze leuk, maar helaas, hij had zelf ook een vergunningsaanvraag lopen. Zijn hele pand, inclusief de parkeerplaatsen, gaat binnenkort in een restaurant omgetoverd worden.
Na veel speuren op het internet leerde Hessel over Salderen. Je blijkt (Haarlem houdt dat liever geheim) de auto’s bij de vorige bestemming af te mogen trekken van de toekomstige parkeerplaatsen. In onze nieuwe aanvraag zit een helemaal zelf bedachte berekening. Een razend populair Sekstheater, open van 10:00 tot 23:00, zeker 8 plaatsen, tegenover een eenvoudige woning met slechts 1,2 parkeerplaats. We houden onze vingers gekruist.
Iedereen leverde keurig op tijd aan (ondanks dat niemand om klussen verlegen zit tegenwoordig) en wij kunnen met blijdschap melden dat afgelopen woensdag, precies één dag voor onze deadline, de hele aanvraag opnieuw de deur uit is gegaan. Donderdag ontving Hessel het volgende bericht:

Yes! de aanvraag is nu compleet! Dat wil nog niet zeggen dat alles is goedgekeurd, maar het kan in ieder geval beoordeeld worden.
Mocht u nu reuze benieuwd zijn naar de aanvullingen, dan zijn ze hier te vinden. De laatste tekening staat hier.
Zoals gezegd hebben wij overbuurvrouw Jildou. Zij is een interieur designer en heeft haar eigen bureau. Bovenal is ze ook superleuk. We vroeger haar advies over het appartement, want zij weet goed “wat de mensen willen” en het appartement moet hoog in de markt, maar bovenal courant worden. Vorige week presenteerde ze Hessel onderstaande tekeningen. Wij vinden het heel erg tof.



Terwijl dit allemaal speelde regende het ook nogal veel. Buurman Mel van nummer 81 kwam laten weten dat bij hem boven water langs de muur liep. Hessel ging met onze Bart op inspectie uit. Wat bleek: ooit bij het uitbouwen van de bovenverdieping heeft iemand vroeg gedacht “hee het past niet” en in de muur van buurman Mel een gat gezaagd, zodat de dakgoot van 79 rood daar verder ingepropt kon worden. Hou deze gedachte even vast.

Aan de andere kant, op 77 rood lekte het bij onze hele lieve 85 jarige buurvrouw ook als een gek naar binnen. Ook daar gingen Bart en Hessel eens een kijkje nemen. Wat bleek: de vorige eigenaren zijn echt dol geweest op purschuim….Het hele dak leek wel van purschuim!

Deze meneer is Paco, die met Bart samenwerkt. Ze hebben met spoed voor ons afgelopen maandag en dinsdag het dak op 77 rood hersteld en er een gloednieuwe dakgoot ingemaakt.



Helaas ging het dinsdag, tijdens de reparatie, zo hard regenen dat bij ons tijdelijk het water uit de stopcontacten kwam (…) maar inmiddels is alles onder controle aan de kant van 77.
Het feit dat de huurders van 79 rood per 1 november met hun pasgeboren baby buiten de stad gaan wonen biedt ook kansen om de andere zaken aan dat pand op te pakken. November gebruiken we voor klussen, per 1 december komen er dan nieuwe huurders. Ook hiervan heeft Hessel voor de VVE vergadering (met mijzelf en mijn broer) handige tekeningen gemaakt.


De achtergevel gaan we trouwens niet meteen in november aanpakken, maar de voorkant wel. Ook zorgen we dat overal goede goten komen, met speciale aandacht voor het stukje goot van Mel.
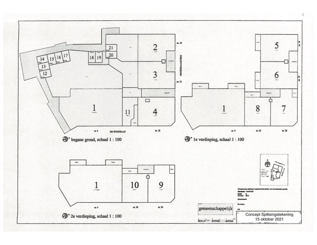
Het moeilijkste van alles wat er loopt is toch eigenlijk wel de aankoop van het stukje grond van Ymere. U weet wel, het steegje achter het theater, waarvan we een gedeelte bij de toekomstige achtertuin willen voegen. Hessel had 1 vergadering gehad (kosten 350,- ex BTW) en de uitkomst van die vergadering was, dat de mensen van Ymere, die de vergadering hadden belegd, vonden dat niet alle info duidelijk was. Dus lang verhaal kort: er moest nog een vergadering komen, waarvoor ook weer 350,- betaald moest worden. Hessel checkte tevoren of alle informatie dan nu wel compleet zou zijn, maar Ymere kan niet anders dan dit in het midden laten. Het zou tijdens of na de vergadering blijken. En zo schoof Hessel van het kastje naar de muur en weer terug. Ondertussen was ook de notaris in stelling gebracht. Er moesten aktes opgesteld worden, en de splitsingsakte kaart kaart moest ook ingetekend worden om de overdracht plaats te laten vinden. Dit is iets wat niet veel mensen vaak doen, want niemand lijkt er handigheid in te hebben. Hessel was de hele afgelopen week bij de notaris aan het polsen of het zou lukken. De documenten zouden zeker komen, maar mogelijk was de tekening te laat. Hessel bood direct aan om de tekening zelf te maken. Als we in vredesnaam maar op vrijdag konden indienen. Want vrijdag was de deadline van de VvE Ymere om het voor hun vergadering van november in te brengen.

Toen op vrijdag alle stukken verzameld waren en ook deze met een druk op de knop verzonden konden worden, kwam er direct bericht terug: een out of office van de meneer bij Ymere die van Hessel had geeist dat hij op 15-10 zou indienen. Dus Hessel weer in de mail om de collega’s van deze meneer te verwittigen dat de documenten toch echt ingeleverd zijn. Anders komt er nog een vergadering en hoogstwaarschijnlijk vertraging.
Lang blog kort:
Als alles vanaf nu op rolletjes blijft lopen, en we een flink aantal vergaderingen, aktes, inspraakronden en aanpassingen verder zijn, lijkt het zomaar te gaan gebeuren dat wij op 31 december de vergunning binnen hebben. Iedereen die in de buurt is mag dan een glaasje komen drinken natuurlijk! Maar dat mag sowieso al. In januari gaat dan de sloopkogel erin; het sloopbedrijf staat al in optie..


Ik volg jullie van een afstand en heb meer dan bewondering voor jullie vermogen om deze ambtelijke uitputtingsslag te overkomen. Sterker nog: potentieel te overwinnen. Ik snap nog niet helemaal waar die sloopkogel toe gaat slaan. Maar dat is verder niet van belang. Ik kan jullie melden dat de ambtenaren hier wat minder administratief te werk gaan. Maar daar staat tegenover dat je hier eigenlijk nooit weet of iemand iets gaat doen. En vooral: wanneer.
Schrijft de gemeente nu brieven aan Hessel of aan je broer in Utrecht?
En moet dat appartement wel zo hoog in de markt gezet worden? Dat wordt straks toch niet meer te betalen?
A.P. Bos