Staal
Alle bouwbedrijven hebben het druk. Maar dan ook echt alle. Zo ook de staalbedrijven. Stel je bijvoorbeeld voor dat je een metalen frame nodig hebt om een achtergevel van te maken. Dan ben je bij alle bedrijven pas over een paar maanden aan de beurt. Zeg ruwweg ergens begin 2023. Of het kan misschien wel eerder, maar dan kost het een vermogen. Behalve, en noteer die naam, bij Amsterdam Noord Staalwerken B.V.
Hartstikke aardige mensen, vlot van begrip, leuk klusje, dat doen we wel even tussendoor. Voor een bedrag wat sympathiek betaalbaar is. Zou het u schikken als we vrijdag 2 december al komen?
Ik was deze week wat snotterig, en hoopte vrijdag weer wat opgeknapt te zijn. Woensdag belden ze. Er was een gaatje in de agenda, is donderdag ook goed?
Zo stond ik, blaffend als een zieke zeehond, gisterochtend om 8 uur klaar om de staalwerkers te ontvangen. Het was vroeg, ik voelde me een tikkie wankel, maar het gaf toch blije energie om weer eens een vrachtwagen met zwaar materieel in de straat te zien.

De mannen spraken netjes Nederlands, maar met een wonderlijk accent. Het waren Polen in vermomming. Het waren tevens vaklieden, bleek al snel. Het was bijzonder om te zien met wat voor tempo de mannen aan het werk gingen. Vrolijk, vol energie. Wat zouden we toch een hoop kunnen leren van onze onvermoeibare Oosterburen. Wij zijn een land van managers, bureauzitters en kletsmajoren. Onze buren doen het echte handwerk.
Oh ja, ik zou het bijna vergeten te vertellen, er was natuurlijk wat voorbereiding aan hun komst vooraf gegaan. Even terug in de tijd:
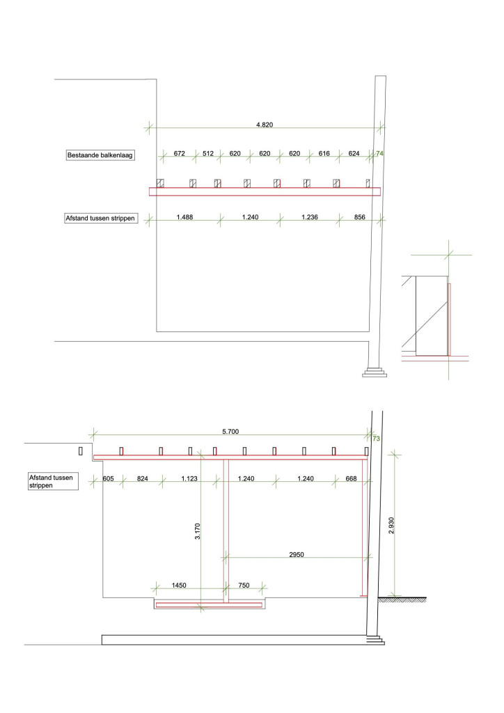
Ik had alles tot in de puntjes uitgerekend, u kent me. In mijn programma Archicad had ik de hele constructie getekend. Daardoor was het redelijk eenvoudig om alle afmetingen door de computer te laten bepalen.
Een totaaloverzicht van de balken in 3D:

Een 3D van de stalen constructie met houten dakbalken:

En de maatvoering zoals de computer en ik samen uitgerekend hadden:

Het theoretische gedeelte was dus onder controle. In de praktijk moest er ook nog wel wat voorbereid worden. Echt handwerk dus. Daar was Mariusz al, met zijn Poolse wonderteam.
Er staat nu nog een gipsplaten muur in het Theater. Het is de tijdelijke achtermuur. Lekker tegen de kou, lekker tegen inbrekers. Recht boven die muur is een grote houten balk. De balk die vervangen gaat worden door een stalen balk.
Om er goed bij te kunnen, moest er ruimte gemaakt worden.
Dus zette Darek de zaag in de latten onder het plafond.

Toen er ruimte was, nam Piotrek de oude elektra onder handen

Ook wij doen zuinig aan met de energie, dus de CV die nog buiten hing hebben we afgekoppeld

Daarna kon de zaag in het bovenste stuk van de muur. Zo, ruimte.


We deden een leuke ontdekking. De timmerman die de houten balk geplaatst heeft, had de balk ondertekend. We vonden een potloodnotitie. Volgens mij staat er: 20 april 1920, W A Kampen Verbouwing.

En wat had ik in mijn archief zitten? Een bouwaanvraag uit 1919, waar voor het eerst een plafond gebouwd wordt over een toenmalige binnenplaats van het theater.

Meneer van Kampen had zeer nauwkeurig gebouwd. Alle balken liggen nu nog precies zoals indertijd getekend was.
Maar, helaas meneer van Kampen, na 100 jaar trouwe dienst gaat uw balk er nu dus uit. Zet de zaag er maar in jongens.
Zo gezegd, zo gedaan. De balk ging eruit, er werd nog een gat in de muur van de buren gemaakt om de stalen balk in te kunnen steken, en team Mariusz was na een half dagje werk alweer klaar.

Genoeg over de voorbereiding, terug naar de vrachtwagen vol staal.
Binnen de kortste tijd lag de eerste balk al op de lift.

Die balk kreeg steun van een kolom. De kolom werd in de muur verankerd.

Meteen daarna werd de ligger in het midden neergelegd en verbonden met de tweede kolom, die in het midden van de constructie staat. Daar bovenop een lange balk.

Terwijl ik dat allemaal rustig stond te bekijken, voltrok zich bij onze buren een schattig soort wonder. Afgelopen zomer was een grote boom die naast ons in de tuin staat helemaal gesnoeid. Behalve de kruin. Ik had als stadse jongen aangenomen dat dat was omdat er dan voldoende groeikracht zou overblijven, of zoiets. Maar nu hoorden we dwars door de staalwerken heen het geluid van een snoeizaag. Er zat een man in de boom. Dezelfde man als afgelopen zomer. Hij was nu teruggekomen, omdat er afgelopen zomer een vogelnestje in de boom zat. Met eieren. Daarom was de kruin toen bewaard gebleven. Mooi he, dat klein vogel geluk ook nog telt in deze harde tijden.


Uiteindelijk waren we aan de zware jongen toe. De balk die de oude houten balk van meneer van Kampen gaat vervangen. Het is een lang verhaal, waar ik u de details van zal besparen, maar ik was daar wat bezorgd over. Bovenop de balk zitten lippen gelast, waar straks de resterende houten balken aan vast geschroefd moeten worden. Het is dus een H-balk met uitsteeksels. Die ongeveer 400 kilo weegt. En die, vanwege de uitsteeksels, schuin van onder in het gat wat team Mariusz had uitgehakt gestoken moet worden. Om dan eerst doorgeschoven te worden richting de tuin van onze buren, pas dan horizontaal kan, en daarna weer teruggeschoven wordt naar zijn definitieve positie.
Hij ging omhoog:

Hij stak schuin in het gat, hij schoof naar rechts, hij kwam horizontaal, hij schoof naar links, hij lag op zijn plaats. Vanwege de zenuwen heb ik geen foto’s gemaakt. Ook deze balk werd meteen verankerd.

(even een schouderklopje aan mezelf: De StaalMannen zeiden na afloop dat dit voor hun de eerste klus dit jaar was waarbij alles op de centimeter precies klopte, en waarbij alles helemaal goed voorbereid was)
Ze lasten nog wat, ze draaiden nog wat bouten aan, en om 11:00 zaten ze alweer in hun busje.

Tijd voor een nieuwe overweging. Eigenlijk was ik om 11 uur al behoorlijk moe. Mijn gehoest was tot in de verre omtrek te horen, ik was best wat slap op de benen. Maar……
De horizontale stalen balk die op het muurtje ligt, moet in beton gestort worden. En beton mag je eigenlijk niet onder de 5 graden storten. De weersvoorspelling zei dat het de komende week hooguit een graad of 2 gaat worden. Deze middag zouden we de 8 graden nog gaan halen……
Doorbijten dus.
Eerst bouwde ik een bekisting van wat oud hout. De buurman met het gat in zijn muur keek gezellig mee.


8 zakken beton in de bekisting en een hele vloer vol met troep.

Tegen een uur of 4 was alles klaar en weer schoongemaakt. En, eerlijk is eerlijk, het leek allemaal best goed op de 3D tekening die ik een tijdje geleden in de voorbereiding gemaakt had.

Aanstaande maandag gaan we het dak op de stalen balken leggen. Ook leuk!


Kunst!!!
Wat een geweldig succes-verhaal.
Wat een goede Polen. En wat goed voorbereid!